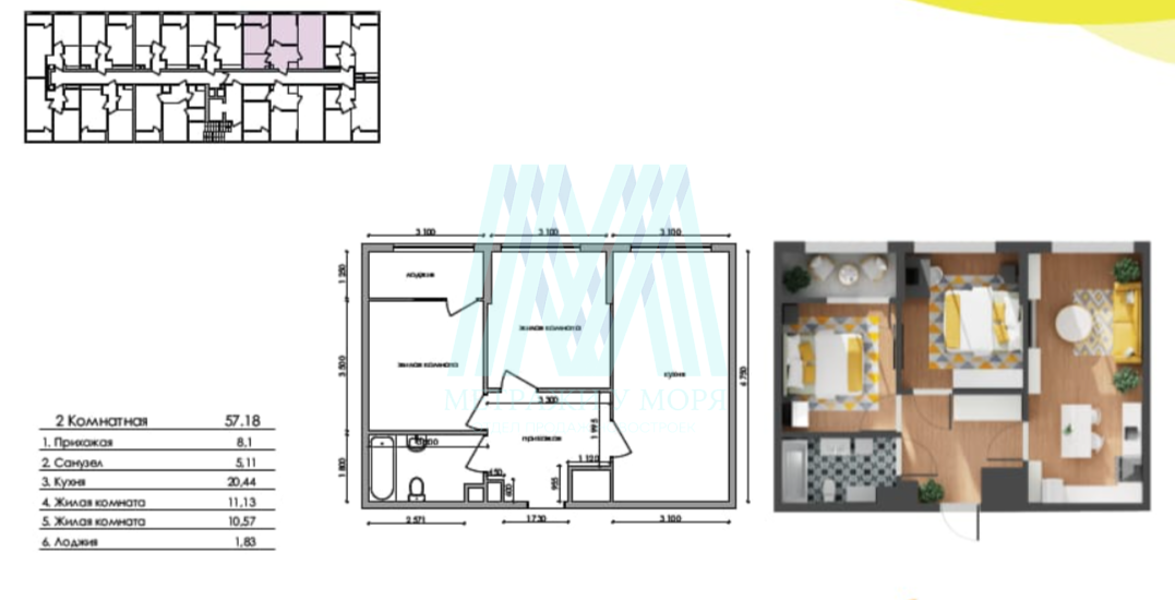
2 - комнатная квартира в ЖК "Солнечный город"
Современный жилой комплекс "Солнечный город" располагается на Южном берегу Крыма в уникальном климатическом курорте - г.Алушта. Комплекс удачно сочетает максимально доступные по площади и цене квартиры с уникальным географическим расположением: в пешей доступности к морским пляжам, главной городской набережной и основным городским достопримечательностям. Из окон квартир открываются панорамные виды Крымской природы- весичественные вершины горы Чатыр-Даг, бесконечные просторы реликтовых и хвойных лесов.
Жилой комплекс «Солнечный город» представляет собой комплексную застройку, состоящую из монолитно-кирпичных зданий.
Застройщиком спроектированы квартиры с различными планировками. Внутренняя отделка не осуществляется.
Благоустройство прилегающей территории включает в себя организацию детских игровых и спортивных площадок, гостевой автостоянки, а также озеленение. В шаговой доступности детские сады, школы, продуктовые магазины, остановки общественного транспорта.
Транспортная доступность: в нескольких минутах ходьбы от комплекса находится автовокзал Алушты, что обеспечивает лёгкий доступ к общественному транспорту и возможность быстро добраться до любой точки города.
от 7 100 000 ₽
от 195 000 м²
Просмотреть дом
Современный жилой комплекс "Солнечный город" располагается на Южном берегу Крыма в уникальном климатическом курорте - г.Алушта. Комплекс удачно сочетает максимально доступные по площади и цене квартиры с уникальным географическим расположением: в пешей доступности к морским пляжам, главной городской набережной и основным городским достопримечательностям. Из окон квартир открываются панорамные виды Крымской природы- весичественные вершины горы Чатыр-Даг, бесконечные просторы реликтовых и хвойных лесов.
Жилой комплекс «Солнечный город» представляет собой комплексную застройку, состоящую из монолитно-кирпичных зданий.
Застройщиком спроектированы квартиры с различными планировками. Внутренняя отделка не осуществляется.
Благоустройство прилегающей территории включает в себя организацию детских игровых и спортивных площадок, гостевой автостоянки, а также озеленение. В шаговой доступности детские сады, школы, продуктовые магазины, остановки общественного транспорта.
Транспортная доступность: в нескольких минутах ходьбы от комплекса находится автовокзал Алушты, что обеспечивает лёгкий доступ к общественному транспорту и возможность быстро добраться до любой точки города.

